洁净手术室医用气体管道连接说明

洁净手术室医用气体管道连接说明

2023-11-01 标久医用

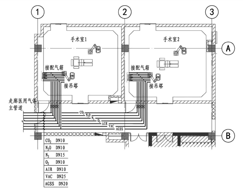
医院洁净手术室医用气体一般配置氧气、压缩空气、真空吸引、二氧化碳笑气、氮气及麻醉废气排放等气体,也可以根据具体需要调整医用气体的种类配置,每种气体都需要独立的气体传输管道,根据医用气体工程技术规范GB50751-2012规定,医用气体管道可采用无缝脱脂不锈管和无缝脱脂铜管。

手术室区域各类医用气体单口供气压力 (MPa):

氧气:0.40~0.45

笑气:0.40-0.45

真空吸引:-0.03~-0.07

二氧化碳:0.35~0.40

压缩空气:0.40~0.45

氮气:0.90-0.953


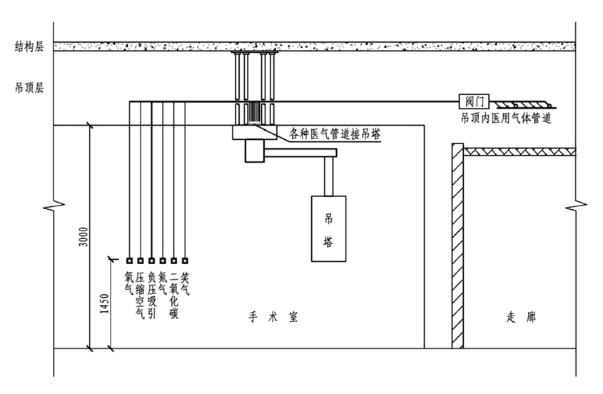
末端接入吊塔及配气箱支管道一般采用紫铜管,


医气名称管道直径
氧气8-10mm
压缩空气
8-10mm
真空吸引10-12mm
氮气
10-12mm
笑气
8-10mm
二氧化碳8-10mm
麻醉废气
10-12mm


主管道可根据用气点总数量设计满足100%使用场景下的管道管径,医用气体管道与其他管道问距应满足《医用气体工程技术规范》GB 50751-2012中表5.110的要求,洁净手术室医用气体总管,应设置区城报警箱、二级减压箱及阀门等设备。


首页
产品
工程
电话