医院医疗气体系统设计方案

医院医疗气体系统设计方案

2022-06-12 标久医用

医院医用气体系统工程设计方案,医气系统设计范围:医院五楼手术室和六楼病房医用气体工程,包含医用中心供氧系统,医用负压吸引系统。

一、设计依据:

1.医用气体工程技术规范>>GB50751-2012

2.建筑设计防火规范>>GB50016-2014(2018年版)

3.工业金属管道设计规范>>GB50316-2008

4.工业金属管道工程施工规范>>GB50235-2010

5.现场设备、工业管道焊接工程施工规范>>GB502362011

6.工业金属管道工程施工质量验收规范>>(GB50184-2011)

7.医院洁净手术部建筑技术规范>>(GB50333-2013)

8.医用气体和真空用无缝铜管>>(YS/T650)

9.最新相关法规:建筑平面图及甲方提出之要求


二、设计范围:

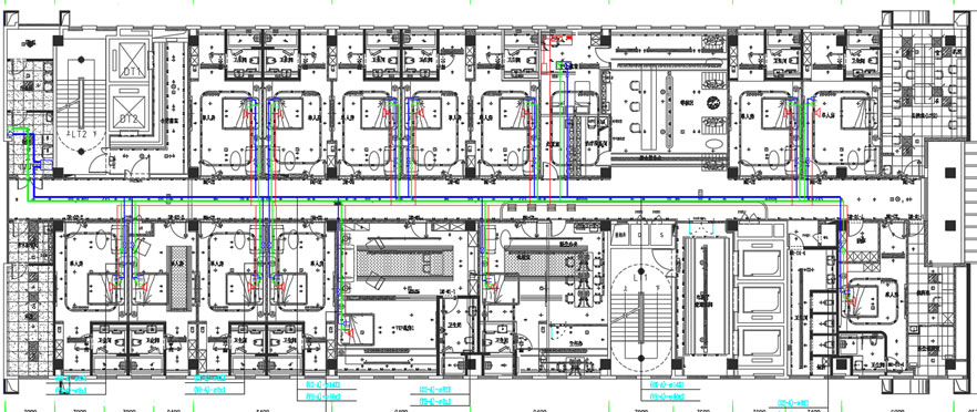
设计范围为1#楼五层手术部及六层病房医用气体系统工程。

本工程的医用气体系统共有以下几种:1.氧气系统,2.负压吸引系统。

手术部设置气体种类有:氧气系统、负压吸引。病房设置气体种类有:氧气系统、负压吸引。


三、设计说明和施工技术要求

1、手术部手术室的墙壁上设一组气体终端,吊塔上设一组气体终端,抢救室、治疗室吊塔上设一组气体终端,各楼层病房设置设备带。氧气、负压吸引由气体站房接至手术室及各楼层病房。站房位置须有甲方指认确定。

2、气体终端采用德制,符合DINEN737-1:1998及DIN13620-2标准;必须操作方便,接口不具备互换性。

3、控制系统:所有气体管道均通过本层阀门控制箱后进入使用区域,每间手术室气体报警设在每间手术室的控制面板上,各楼病房气体报4设置于护士台区域。

4、医用气体管线应按照现行国家有关规范采购、安装,管道应做好分段标识。

5、洁净手术部应设置能紧急手动切断集中供氧干管的装置。

6、所有气体管道均采用脱脂紫铜管,管道采用银基钎焊,焊接后应进行外观检查,所有医气管道均为暗装。

7、管道穿墙壁应敷设在套管内,套管内的管段不得有焊缝,管道与套管之间应采用不燃性密封材料封口。

8、医用气体管路、阀门、仪表安装前应清洗内部并进行脱脂处理,用油压缩空气或氮气吹净。

9、医疗气体配管与其它管道之间应符合GB50030-2013《氧气站设计规范》及GB50029-2014《压缩空气站设计规范》的要求

10、进入手术室医疗单元、各楼层病房及各用气设备的医气管道必须接地,其接地电阻小于等于10Q。

11、管道焊缝应进行外观检查,焊缝不允许有气孔、缩孔和夹渣。管道有交叉的地方,安装的原则为小管让大管,有压管让无压管。

12、医用气体采用独立的支吊架,不允许与其它管道共架敷设;其与燃气管、腐蚀性气体管的距离大于1.5m且有隔离措施;与电线管道平行距离应大于0.5m,交叉距离应大于0.3m,如空间无法保证,应做绝缘防护处理,以防静电腐蚀而击穿管道。其间距如下表:

13、各种气体气源压力要求、医气输出口压力、流量参数、医气输出口种类及数量见下表:

14、医气管道应与燃气管、肩蚀性气体管的距离大于1.5m且有隔离措施;与电线管道平行距离应大于法保证,应做绝缘防护处理。

15、压力试验:医用气体管道应分段、分区以及全系统作压力试验及泄漏性试验。

16.管道吹扭:管道安装完毕后应分段进行吹扫,吹扫的顺序应按主管道、副管道、支管道进行;主管道吹扫时应将副管道阀门接头松开,以防止杂物吹入副管道;副管道吹扫应在支管道未接通时进行;支管道吹扫应在系统管道安装完毕后进行;吹扫时应有足够的流量,吹扫压力不得超过设计压力, 吹速不低于20m/s, 正压管道采用0.5MPa进行吹扫; 负管道采用0.2MPa进行吹扫, 吹扫介质采用无油压缩空气或兔气,吹扫完毕后进行检验,当目测排气无烟尘时,在排气口用白布或漆白漆的木制靶板检验,1分钟内白布上应无污物、油污、尘士、水分等为合格,并作好记录。

17.氧气系统试压吹扫合格后,须从汇流排出口处接入,对全系统由近向远进行气体置换,将原系统内试验用气体全部放干净。

18、施工企业、施工人员应具备相关资质说明与执业证书。

19、值班室设ZQ-2氧气、负压吸引压力自动报警箱各1只,当氧气、负压吸引等压力超上限或低于下限时发出声光报警。

20、病房内设备带电源线2.5mm²的铜芯线应预留其位置,详间各管道布置图。

21、其它未尽事宜按国家相关标准执行。

首页
产品
工程
电话